借助地理优势,中国深圳沙井在过去二三十年蓬勃发展了低端制造产业。大量工厂的建设吞噬原有优美的湿地和农田。这些低端制造产业衍生的工厂园区粗暴迅猛地在城市边缘无序扩张。工厂园区和外部的城市空间都形成消极的场所。近几年,基地所在的工业园区的周边建设了许多住宅和配套的学校。此项目希望通过绿色人文空间的重塑,为园区工作的人、周边的居民、学校里老师学生、以及种植爱好者提供一个有活力的公共活动交流的场所。同时,通过组织各类体验式活动,沙井传统的种植文化以新的方式传承下去并成为社区营造的媒介。
 
	  
 
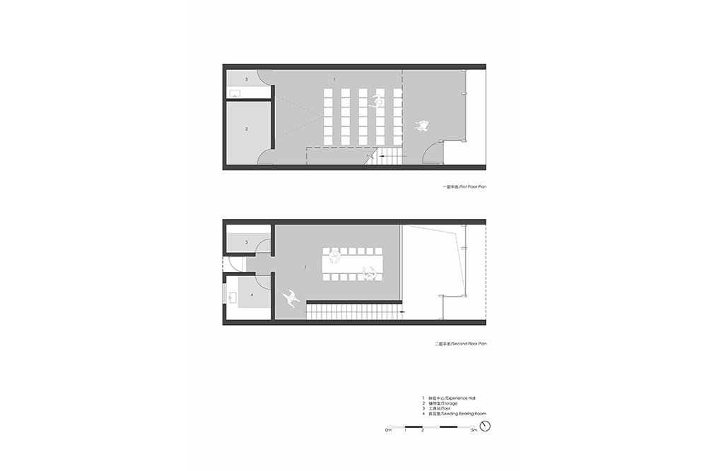
	在原有的园区整体布局中,内庭院的西侧是一个室外停车场。为了改善庭院的空间效果和保留停车功能的需求,停车场的上方增添了景观大平台。通过台阶的设置,大平台成为内庭院空间的延续,从而形成不同标高的公共空间体系,而台阶也成为内庭院举办户外活动时的观众座椅。平台上布满了错落有致的混凝土种植槽,不同喜好的人栽种不一样的农作物和灌木花草,形成有趣生动的景观。平台上的大洞口为下面的停车场提供良好的采光,而洞口中间的香樟大树也为停车空间提供绿意。此外,清水混凝土材质的种植体验馆坐落在大平台的东北角,它为种植爱好者提供学习交流的场所。一层作为公共功能包含了展示、交流和讲座的功能,二层则是种植操作空间和培训功能。两层高的植物绿墙展示着各式各样的植物,小小的两层通高空间成为亲密而有互动的交流学习场所。内部悬空的楼梯与悬挂着的楼板让这小巧的建筑显得灵巧。同时,建筑内不同标高的两个入口使大平台、室内空间和内庭院三者之间建立更紧密的联系。
 
	   
          
	With the advantage of geography, Shenzhen Shajing has largely developed the low-end manufacturing industry in the past two or three decades. The mass construction of factories not only destroyed the scenery wetland and farmland, but also brought chaos to the nearby suburb. Industrial parks and external urban spaces form negative places. In recent years, many residential buildings and schools were built around the industrial park. This project hopes to provide a dynamic public space for workers, residents, teachers, students and the plant lovers by reshaping of the green humanities space. With various experiential activities held in the space, the traditional planting culture of Shajing is passed down in a new form, which is also a media for community building.  
 
	   
 
	In the original site layout, there is an outdoor parking lot in the west next to the courtyard. In order to meet the demand for parking, and to improve the spatial quality of the courtyard, a large landscaped terrace was created which covers the parking lot. Connecting by the steps, this large terrace becomes the extension of the courtyard, with which the courtyard establishes the public space system of different levels, and the steps could provide seats for audience when outdoor activities are held in the courtyard. Concrete planting troughs are randomly placed on the terrace, where people can plant various crops and shrubs, depending on their individual preferences, so that these crops and shrubs create interesting and vivid landscape. The big hole on the terrace provides better sunlight for the parking lot below, and the cinnamomum camphora in the middle of the hole also provides greenery for parking. At the same time, in the northeast of the terrace, there is a planting pavilion made of exposed concrete, which brings plant lovers together to learn from one another. The first floor is a public space for exhibition, communication and lectures, while program of the second floor is a planting and training space. The two-storey height green vegetation wall exhibits various plants, while the two-storey height space becomes learning place for people to communicate and interact with each other. The cantilevered staircase and the hanging floor in the building make it light and delicate. At the same time, the two entrances with different levels in the building create a closer connection among the terrace, the interior space and the courtyard. 
  
        
           项目名称: 籽舍种植平台和体验馆
功能: 公共空间
项目地址:深圳市宝安区全至科技创新园
业主: 深圳市佳领域实业有限公司
项目设计 & 完成年份:2016/2018
建筑面积:2080㎡
主持建筑师:曾冠生
建筑设计团队: 罗文国 沈家源 张凡 | 朱彦伦 洪凤莲 陈勋
景观设计团队: 罗文国 沈家源 | 洪凤莲 陈勋
室内设计团队: 罗文国 麦梓韵 | 朱彦伦
摄影: 张超
主要材料: 钢、樟子松木地板、清水混凝土
 
           Project name: The planting terrace and the experience pavilion
Category: Public Space
Project location: Quanzhi Technology Innovation Park, Bao an District, Shenzhen
Client: Shenzhen Jialingyu Industrial Limited Company
Design year & Completion Year:2016/2018
Area: 2080㎡
Lead Architect: Guansheng Zeng
Architecture Design: Wenguo Luo, Jiayuan Shen, Fan Zhang | Yanlun Zhu, Fenglian Hong, Xun Chen
Landscape Design: Wenguo Luo, Jiayuan Shen | Fenglian Hong, Xun Chen
Interior Design: Wenguo Luo, Ziyun Mai | Yanlun Zhu
Photo credits: Chao Zhang
Material: Steel、Camphor pine wood、Fair-faced concrete